In het Centrum van Brunssum, aan de Pastoor Savelbergstraat 118, ligt dit instapklare koopappartement (bwj. 1986, later gerenoveerd) met hoekligging, lift, balkon en inpandig bereikbare ruimere eigen garage annex berging in het souterrain.
Indeling:
Begane grond: Gezamenlijke entree, hal met videofoon-bellentableau, brievenbussen en toegang tot het trappenhuis en de lift.
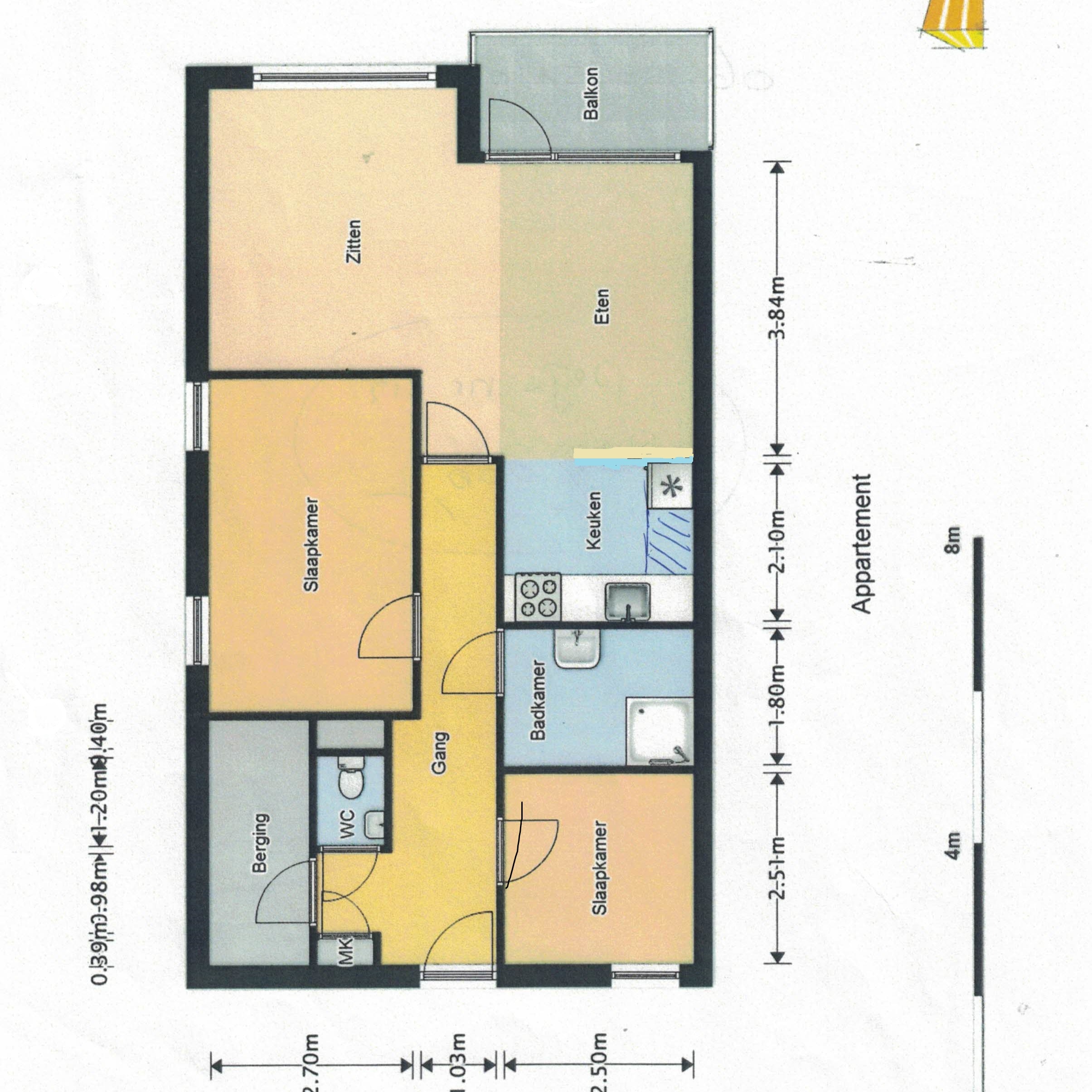
2e Verdieping (laminaatvloeren): Overloop en buitengalerij; Entree/hal met een meterkast en betegeld gastentoilet met fonteintje. Twee slaapkamers (afm. ca. 4,40m x 2,70 en 2,51x2,50m). Bergruimte met opstelplaats eigen cv-combi-installatie (2015) en witgoedaansluitingen. Geheel betegelde badkamer (ca. 2,50m x 1,82m) met douche, badmeubel met wastafel. Z-vormige woonkamer (ca. 6,37x3,70/3,83m) met een laminaatvloer en toegang tot het balkon op het zuiden (ca. 2,60m x 1,30m). Open keuken (ca. 2,50m x 2,20m) met eigentijdse keuken in hoekopstelling met inbouwapparatuur te weten: een keramische kookplaat, oven, wasemkap, koel-/diepvrieskast en vaatwasser.
Souterrain: Ruime privé-garage (ca. 8,50m x 3,10m) met elektrische stalen kantelpoort, inpandig bereikbaar via keldergang.
Bijzonderheden:
Energielabe C! Dit appartement is gelegen in het centrum van Brunssum, op loopafstand van winkels, horeca, openbaar vervoer en natuurgebied de Brunssummerheide. Deze woning (2e verdieping) is toegankelijk via trap en lift - dus ook geschikt voor minder valide personen. Men heeft de beschikking over een ruime privé-garagebox met directe toegang vanuit het complex. De kozijnen zijn van (hard)hout met dubbele beglazing en rolluiken. Spouwmuur- en dakisolatie aanwezig. Woonoppervlakte ca. 70m2 exclusief balkon. Aanvaarding: per direct. Vraagprijs € 225.000,- k.k.
Voor het appartementencomplex ligt nog een openbare parkeerruimte. Tevens op loopafstand in de Wilhelminastraat bevindt zich een busstation.
De bijdrage voor de Vereniging van Eigenaren in 2025 bedraagt €130,- per maand.
Overige informatie
De gebruikelijke bankgarantie/waarborgsom van 10% is van toepassing.
Indien c.v.-ketel en/of warmwatervoorziening een huurtoestel is, dient koper de huurovereenkomst over te nemen.
Toelichtingsclausule NEN2580 De Meetinstructie is gebaseerd op de NEN2580. De Meetinstructie is bedoeld om een meer eenduidige manier van meten toe te passen voor het geven van een indicatie van de gebruiksoppervlakte. De Meetinstructie sluit verschillen in meetuitkomsten niet volledig uit, door bijvoorbeeld interpretatieverschillen, afrondingen of beperkingen bij het uitvoeren van de meting. Conform artikel 7:2 Burgerlijk Wetboek, is er pas sprake van een rechtsgeldige koopovereenkomst als de particuliere verkoper en de particuliere koper de koopovereenkomst hebben ondertekend. Een mondelinge overeenstemming tussen de particuliere verkoper en de particuliere koper is niet rechtsgeldig. Voor meer informatie en/of bezichtiging kunt u een vrijblijvende afspraak met ons maken. Disclaimer Alle door ons kantoor verstrekte informatie omtrent onroerende zaken, moet beschouwd worden als een uitnodiging om in onderhandeling te treden, en is geheel vrijblijvend!
